Every construction and design project team knows the pain of disconnected reviews. Drawings live in email threads, markups are sent back and forth as PDFs, comments get lost between software, and no one is certain which version is current.
These gaps lead to rework, delays, and wasted time. The problem isn’t a lack of tools, but a lack of connection between them.
Drawboard Projects solves that problem by bringing the entire review process together in a real-time drawing review and markup platform that combines precise markup tools, built-in task tracking, and structured version control in one workspace.
Instead of passing annotated PDFs between stakeholders, teams can review, discuss, and approve drawings together in a shared environment where every markup, comment, and decision stays linked to the correct revision. The result is faster coordination, fewer mistakes, and greater confidence that everyone is working from the same set.
Keep reading to see how Drawboard Projects turns disconnected reviews into a single, connected workflow that keeps every team aligned from first markup to final handover.
Drawboard Projects is built for architecture, engineering, and construction teams that coordinate drawings with multiple reviewers, consultants, and contractors. It brings everyone into one connected space where design intent, comments, and approvals stay clear from start to finish.
Architects and designers use it to communicate design intent with precision and keep consultant feedback organized. During design coordination and drawing set reviews, they can share drawings with other disciplines and even external parties, layer feedback to separate streams of work, and verify that updates reflect approved changes to help streamline consultant coordination and keep work on track.
Engineers and project managers rely on Drawboard Projects to manage technical review workflows and maintain a clear record of changes. Structural, civil, and building services engineers use Tasks to track load adjustments, clashes, and specification updates directly on the relevant sheets. Project managers oversee RFI responses and approval tracking, referencing version history to confirm when updates were applied, providing traceability that improves coordination and accelerates design approvals between disciplines.
Contractors and construction managers use Drawboard Projects to connect office and field teams. During submittal, QA/QC, and punch workflows, they manage RFIs, document issues, and attach site photos to Tasks for accountability. When revised drawings are issued, version control ensures everyone builds from the correct set, reducing rework and miscommunication.
Owners and clients benefit from transparency throughout design and delivery. They can join Projects as guest reviewers to participate in design milestone reviews, submittal approvals, and change request tracking. All feedback and decisions stay recorded automatically, giving them confidence that input has been implemented before handover.
Across all roles, Drawboard Projects helps teams close the gap between markup and action. It shortens review loops, reduces costly errors, and turns scattered feedback into a single, structured source of truth that everyone can trust.
Drawboard Projects is designed to make drawing reviews faster, more consistent, and easier to follow. Its tools combine intuitive markup, structured task tracking, and reliable version control to keep feedback organized and decisions traceable from start to finish.
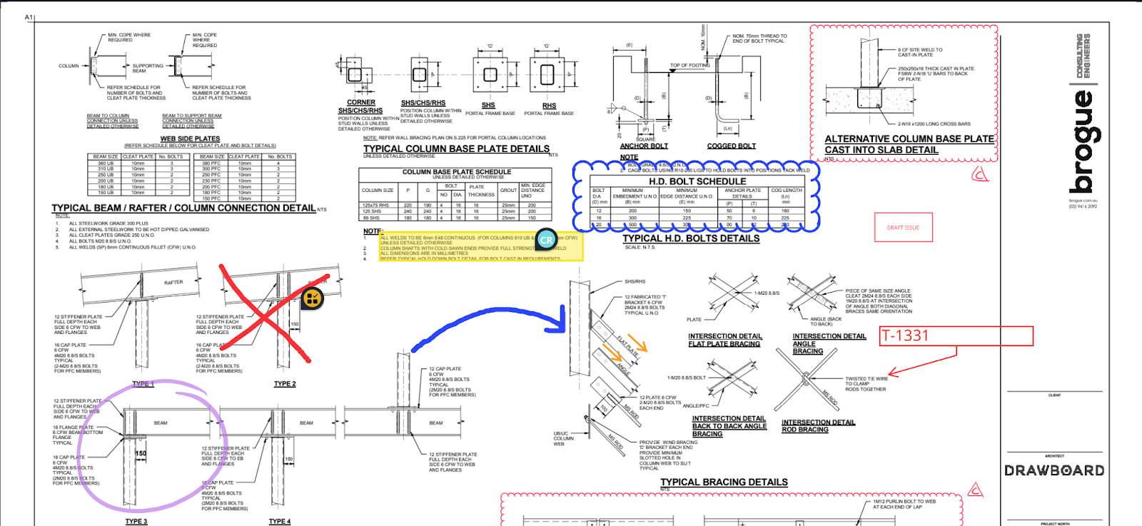
At the core of Drawboard Projects is a fast, real-time markup environment that keeps everyone working on the same live drawing. Markup syncs instantly across devices, so when multiple reviewers annotate, everyone sees updates in real time. This removes the back-and-forth of sending separate PDFs and ensures that feedback is seen and discussed as it happens.

Drawboard Projects delivers an advanced, tactile markup experience across devices. On Windows and iOS, users can sketch directly on drawings using a Surface Pen or Apple Pencil, with pressure-sensitive inking that mimics real handwriting and line weight. Tools like highlighters, callouts, text boxes, shapes, and customizable colors make annotations precise and easy to interpret.
Layers give teams complete control over visibility. Each reviewer can work on their own layer, or layers can be shared selectively with specific collaborators to keep reviews organized and relevant. Architects can share design notes with engineers, for example, without exposing internal markups to the entire project team. This layered structure keeps drawings clear even when many people are contributing.

Reviewers can drop digital stamps for status updates such as “Approved” or “For Review,” while Hyperlinks connect related drawings and supporting documents, turning static plan sets into interactive packages. The Markup Library saves common notes and symbols for reuse, maintaining consistency across projects.
All contributions are logged in the Activity Feed, which records who added each markup and when, creating a transparent history of every discussion and decision.
Tasks in Drawboard Projects bring structure and accountability directly onto the drawing. They’re pinned to specific locations and stay anchored across revisions, giving teams clear visibility into what needs attention and where. Each Task includes an assignee, due date, and description to define ownership and keep responsibilities clear.

Tasks transform feedback into action. Conversations, updates, and supporting images all stay attached to the drawing location where the issue exists, keeping context intact from discovery through completion.

Activity history records every status change, comment, and edit, creating a transparent record of how work moves forward.

Custom categories, statuses, and types let teams tailor Tasks to match their workflow, whether for design reviews, QA, or punch items. Pins and colors update automatically as statuses change, making project progress easy to interpret at a glance. Tasks can also link across multiple drawings or documents, keeping related items unified when an issue spans several areas or disciplines.

The Task List brings everything together in one organized view. Teams can filter by assignee, due date, status, or tag to stay on top of priorities and track performance.
For more advanced coordination, the Public API allows Task data to sync with external dashboards or management systems, keeping Drawboard Projects aligned with broader organizational tools.
By combining clarity, flexibility, and traceability, Tasks make it simple to capture issues, assign ownership, and see work through to completion, all within the same workspace where drawings are reviewed and approved.
Drawboard Projects automatically organizes drawings by version, so teams always review the latest set without renaming files or checking timestamps. When a new revision is uploaded, the app detects title block data and stacks it in order, keeping the entire history accessible for reference. This prevents version confusion and ensures reviewers work from a single, consistent source of truth.

Overlays make it simple to confirm what changed between revisions. Users can toggle between versions or overlay them to see differences visually before approving updates. Combined with the built-in review statuses, overlays give every stakeholder confidence that revisions have been checked and approved before they reach the field.
Measurement tools in Drawboard Projects let teams verify details quickly without leaving the drawing. Reviewers can calibrate a scale once, then measure distances, areas, and perimeters directly on the canvas with reliable accuracy.

Measurements remain consistent across devices, allowing designers, engineers, and field teams to validate dimensions and quantities within the same environment used for markups and reviews.
Drawboard Projects gives teams precise control over who can view, edit, and contribute to drawings. Permissions can be managed at both the workspace and project levels, ensuring the right people have access to the right information.

Free guest access makes external collaboration simple. Clients, consultants, or subcontractors can be invited to review and comment on drawings without needing a paid license. Their contributions appear alongside internal feedback, maintaining one connected review process without expanding your seat count.
Access can be time-limited or restricted to specific projects, keeping sensitive information secure while still enabling fast, open collaboration. For enterprise environments, Drawboard Projects meets SOC 2 standards and supports single sign-on for consistent security and compliance across teams.
Drawboard Projects integrates with the tools teams already use, including Revit, Procore, Aconex, and popular cloud drives like OneDrive, Google Drive, and Dropbox. These integrations make it easy to import drawings or export annotated sets back to existing systems without disrupting established workflows.

They keep Drawboard Projects connected to broader project management ecosystems while letting teams review, comment, and approve drawings in a faster, more visual workspace.
Drawboard Projects is built specifically for design and construction teams that need a faster, more accurate way to review and approve drawings. While other tools focus on digitizing documents, Drawboard Projects combines precision, real-time collaboration, and connected task management to keep every stakeholder working from the same source of truth.
Here’s what that means for your business:
Unlike generic PDF tools, Drawboard Projects is purpose-built for the drawing review process. It gives teams the precision of hand markup, the speed of real-time collaboration, and the visibility to keep every project on track. For design and construction professionals who rely on accuracy, it’s the faster, smarter way to move from feedback to approval with complete confidence.
Drawboard Projects works across Web, Windows, and iOS, giving every contributor the same connected workspace on the device that suits them best. This means it maintains consistent version history, layer structure, and live syncing across all platforms, allowing teams to switch devices without losing progress.
Here’s where each app excels.
Accessible from any modern browser, the web app is the easiest way to join reviews without installing software. It’s perfect for Android and Mac users who need robust functionality but prefer a lightweight, no-setup option, like external collaborators. The browser interface mirrors the desktop experience closely, so users can open large drawing sets, toggle layers, and join live reviews instantly.
Because it is fully cloud-based, it always reflects the latest updates, but requires an internet connection to use.
The Windows app is built for detail and precision. It supports full inking with Surface Pen and other styluses, capturing line weight and pressure sensitivity for markups that feel natural and accurate. Users benefit from the full set of review tools, including Stamps for approval workflows and deep layer control for complex drawing coordination.
Offline functionality is strongest here, allowing entire drawing sets to be carried into the field or meeting rooms and synced back automatically later.
The iOS app brings Drawboard Projects’ review environment into the field. On iPad, Apple Pencil support enables natural sketching and inking, making it ideal for punch walks, design clarifications, or on-site markups. Photos can be attached directly to drawings or Tasks from the device’s camera, adding real-world context instantly.
The iPhone app offers mobile access to comments, Tasks, and updates, making it ideal for quick visibility and updates on the go.
Both versions function offline, so teams can use them in the field and then sync updates when internet access is restored later.
Architecture, engineering, and construction teams all face the same challenge: keeping drawings current, coordinating feedback across disciplines, and making sure decisions flow through to completion. Drawboard Projects brings those workflows into one shared environment, helping teams keep design intent, field conditions, and approvals aligned from start to finish.

Drawboard Projects centralizes design feedback so coordination between disciplines happens faster and with less confusion. Teams can conduct live drawing reviews, powered by real-time syncing, with each contributor adding their own markups and working on specific layers while Tasks capture follow-up actions in context.
Version overlays confirm that requested changes have been incorporated, and all feedback is recorded against the correct revision. This replaces email chains and conflicting PDFs with a single workspace where every comment is visible, traceable, and ready for approval.

By keeping design discussions focused and connected, Projects reduces review cycles, improves consultant coordination, and ensures drawings are always ready for issue.

Submittal reviews move faster when everything happens in one place. Drawboard Projects lets teams upload, review, and annotate shop drawings collaboratively, using Tasks to flag clarifications or changes directly on the drawing.
When a resubmittal is received, overlays show exactly what changed, making it easy to confirm that all feedback has been addressed. The full record of markups and approvals stays attached to the drawing, removing the need for manual tracking or extra documentation.
This clarity shortens review cycles, strengthens accountability, and ensures every approved submittal reflects the latest design requirements.

Drawboard Projects keeps office and field teams connected through one always-current set of drawings. On site, teams can drop Task pins to flag issues, attach photos or notes for context, and assign follow-up actions directly on the sheet, even offline.
When connectivity returns, updates sync automatically, giving project leads and coordinators an instant view of what’s been identified, resolved, or still open. This removes the need to manage separate site logs, reports, or spreadsheets and ensures that decisions made in the field are visible to everyone involved.
By capturing issues where they occur and syncing them to the same workspace used in the office, Drawboard Projects shortens QA/QC cycles, prevents communication gaps, and keeps projects moving without costly on-site rework.
Before drawings are reissued, Drawboard Projects provides a fast, visual way to confirm that every change has been reviewed and approved. Drawings are automatically stacked by version, and overlays highlight differences clearly so reviewers can verify updates with confidence.

Review Statuses track which sheets are approved, in progress, or still under review, providing an at-a-glance summary for decision-makers. This process eliminates uncertainty, ensures only validated drawings reach the field, and keeps every stakeholder aligned on the latest revision.
By maintaining this level of clarity, teams can minimize rework, save time in review meetings, and be confident that they’re always working from the correct information.

As projects close out, Drawboard Projects becomes the complete record of every review, markup, and decision made along the way. Final drawings, Task lists, and approval trails can be exported directly, creating a clear documentation package for client delivery or future reference.

This organized project record reduces the time and stress of closeout, eliminates the risk of missing information, and provides a transparent account of every change and approval. Clients receive a verified record of what was built and approved, and project teams gain a reliable reference for future work.
Drawboard Projects grows with your team. Each pricing plan builds on the same connected review foundation with real-time collaboration, powerful markup tools, and structured task management, adding more control, integrations, and admin tools as your projects expand.
For small to mid-sized teams ready to modernize their drawing reviews.
For larger teams coordinating across disciplines or external partners.
For organizations that need full-scale governance, security, and admin control.
All plans include a 30-day free trial to help you see firsthand how Drawboard Projects can upgrade your design reviews.
When reviews, markups, and decisions happen in different places, coordination slows and details fall through the cracks. Drawboard Projects brings everything into one shared workspace, helping teams move from feedback to approval without the friction of disconnected tools.
Teams see faster turnaround times, fewer revision errors, and stronger alignment between design, construction, and client teams. Every markup and Task stays traceable, version confusion disappears, and the entire review process becomes faster, clearer, and easier to manage.
Whether you’re coordinating design reviews, managing submittals, or tracking site issues, Drawboard Projects gives you the structure to keep every contributor working from the same source of truth.
Start your 30-day free trial today, or schedule a demo to learn how Drawboard Projects can help streamline your design reviews.
Every construction and design project team knows the pain of disconnected reviews. Drawings live in email threads, markups are sent back and forth as PDFs, comments get lost between software, and no one is certain which version is current.
These gaps lead to rework, delays, and wasted time. The problem isn’t a lack of tools, but a lack of connection between them.
Drawboard Projects solves that problem by bringing the entire review process together in a real-time drawing review and markup platform that combines precise markup tools, built-in task tracking, and structured version control in one workspace.
Instead of passing annotated PDFs between stakeholders, teams can review, discuss, and approve drawings together in a shared environment where every markup, comment, and decision stays linked to the correct revision. The result is faster coordination, fewer mistakes, and greater confidence that everyone is working from the same set.
Keep reading to see how Drawboard Projects turns disconnected reviews into a single, connected workflow that keeps every team aligned from first markup to final handover.
Drawboard Projects is built for architecture, engineering, and construction teams that coordinate drawings with multiple reviewers, consultants, and contractors. It brings everyone into one connected space where design intent, comments, and approvals stay clear from start to finish.
Architects and designers use it to communicate design intent with precision and keep consultant feedback organized. During design coordination and drawing set reviews, they can share drawings with other disciplines and even external parties, layer feedback to separate streams of work, and verify that updates reflect approved changes to help streamline consultant coordination and keep work on track.
Engineers and project managers rely on Drawboard Projects to manage technical review workflows and maintain a clear record of changes. Structural, civil, and building services engineers use Tasks to track load adjustments, clashes, and specification updates directly on the relevant sheets. Project managers oversee RFI responses and approval tracking, referencing version history to confirm when updates were applied, providing traceability that improves coordination and accelerates design approvals between disciplines.
Contractors and construction managers use Drawboard Projects to connect office and field teams. During submittal, QA/QC, and punch workflows, they manage RFIs, document issues, and attach site photos to Tasks for accountability. When revised drawings are issued, version control ensures everyone builds from the correct set, reducing rework and miscommunication.
Owners and clients benefit from transparency throughout design and delivery. They can join Projects as guest reviewers to participate in design milestone reviews, submittal approvals, and change request tracking. All feedback and decisions stay recorded automatically, giving them confidence that input has been implemented before handover.
Across all roles, Drawboard Projects helps teams close the gap between markup and action. It shortens review loops, reduces costly errors, and turns scattered feedback into a single, structured source of truth that everyone can trust.
Drawboard Projects is designed to make drawing reviews faster, more consistent, and easier to follow. Its tools combine intuitive markup, structured task tracking, and reliable version control to keep feedback organized and decisions traceable from start to finish.
At the core of Drawboard Projects is a fast, real-time markup environment that keeps everyone working on the same live drawing. Markup syncs instantly across devices, so when multiple reviewers annotate, everyone sees updates in real time. This removes the back-and-forth of sending separate PDFs and ensures that feedback is seen and discussed as it happens.

Drawboard Projects delivers an advanced, tactile markup experience across devices. On Windows and iOS, users can sketch directly on drawings using a Surface Pen or Apple Pencil, with pressure-sensitive inking that mimics real handwriting and line weight. Tools like highlighters, callouts, text boxes, shapes, and customizable colors make annotations precise and easy to interpret.
Layers give teams complete control over visibility. Each reviewer can work on their own layer, or layers can be shared selectively with specific collaborators to keep reviews organized and relevant. Architects can share design notes with engineers, for example, without exposing internal markups to the entire project team. This layered structure keeps drawings clear even when many people are contributing.

Reviewers can drop digital stamps for status updates such as “Approved” or “For Review,” while Hyperlinks connect related drawings and supporting documents, turning static plan sets into interactive packages. The Markup Library saves common notes and symbols for reuse, maintaining consistency across projects.
All contributions are logged in the Activity Feed, which records who added each markup and when, creating a transparent history of every discussion and decision.
Tasks in Drawboard Projects bring structure and accountability directly onto the drawing. They’re pinned to specific locations and stay anchored across revisions, giving teams clear visibility into what needs attention and where. Each Task includes an assignee, due date, and description to define ownership and keep responsibilities clear.

Tasks transform feedback into action. Conversations, updates, and supporting images all stay attached to the drawing location where the issue exists, keeping context intact from discovery through completion.

Activity history records every status change, comment, and edit, creating a transparent record of how work moves forward.

Custom categories, statuses, and types let teams tailor Tasks to match their workflow, whether for design reviews, QA, or punch items. Pins and colors update automatically as statuses change, making project progress easy to interpret at a glance. Tasks can also link across multiple drawings or documents, keeping related items unified when an issue spans several areas or disciplines.

The Task List brings everything together in one organized view. Teams can filter by assignee, due date, status, or tag to stay on top of priorities and track performance.
For more advanced coordination, the Public API allows Task data to sync with external dashboards or management systems, keeping Drawboard Projects aligned with broader organizational tools.
By combining clarity, flexibility, and traceability, Tasks make it simple to capture issues, assign ownership, and see work through to completion, all within the same workspace where drawings are reviewed and approved.
Drawboard Projects automatically organizes drawings by version, so teams always review the latest set without renaming files or checking timestamps. When a new revision is uploaded, the app detects title block data and stacks it in order, keeping the entire history accessible for reference. This prevents version confusion and ensures reviewers work from a single, consistent source of truth.

Overlays make it simple to confirm what changed between revisions. Users can toggle between versions or overlay them to see differences visually before approving updates. Combined with the built-in review statuses, overlays give every stakeholder confidence that revisions have been checked and approved before they reach the field.
Measurement tools in Drawboard Projects let teams verify details quickly without leaving the drawing. Reviewers can calibrate a scale once, then measure distances, areas, and perimeters directly on the canvas with reliable accuracy.

Measurements remain consistent across devices, allowing designers, engineers, and field teams to validate dimensions and quantities within the same environment used for markups and reviews.
Drawboard Projects gives teams precise control over who can view, edit, and contribute to drawings. Permissions can be managed at both the workspace and project levels, ensuring the right people have access to the right information.

Free guest access makes external collaboration simple. Clients, consultants, or subcontractors can be invited to review and comment on drawings without needing a paid license. Their contributions appear alongside internal feedback, maintaining one connected review process without expanding your seat count.
Access can be time-limited or restricted to specific projects, keeping sensitive information secure while still enabling fast, open collaboration. For enterprise environments, Drawboard Projects meets SOC 2 standards and supports single sign-on for consistent security and compliance across teams.
Drawboard Projects integrates with the tools teams already use, including Revit, Procore, Aconex, and popular cloud drives like OneDrive, Google Drive, and Dropbox. These integrations make it easy to import drawings or export annotated sets back to existing systems without disrupting established workflows.

They keep Drawboard Projects connected to broader project management ecosystems while letting teams review, comment, and approve drawings in a faster, more visual workspace.
Drawboard Projects is built specifically for design and construction teams that need a faster, more accurate way to review and approve drawings. While other tools focus on digitizing documents, Drawboard Projects combines precision, real-time collaboration, and connected task management to keep every stakeholder working from the same source of truth.
Here’s what that means for your business:
Unlike generic PDF tools, Drawboard Projects is purpose-built for the drawing review process. It gives teams the precision of hand markup, the speed of real-time collaboration, and the visibility to keep every project on track. For design and construction professionals who rely on accuracy, it’s the faster, smarter way to move from feedback to approval with complete confidence.
Drawboard Projects works across Web, Windows, and iOS, giving every contributor the same connected workspace on the device that suits them best. This means it maintains consistent version history, layer structure, and live syncing across all platforms, allowing teams to switch devices without losing progress.
Here’s where each app excels.
Accessible from any modern browser, the web app is the easiest way to join reviews without installing software. It’s perfect for Android and Mac users who need robust functionality but prefer a lightweight, no-setup option, like external collaborators. The browser interface mirrors the desktop experience closely, so users can open large drawing sets, toggle layers, and join live reviews instantly.
Because it is fully cloud-based, it always reflects the latest updates, but requires an internet connection to use.
The Windows app is built for detail and precision. It supports full inking with Surface Pen and other styluses, capturing line weight and pressure sensitivity for markups that feel natural and accurate. Users benefit from the full set of review tools, including Stamps for approval workflows and deep layer control for complex drawing coordination.
Offline functionality is strongest here, allowing entire drawing sets to be carried into the field or meeting rooms and synced back automatically later.
The iOS app brings Drawboard Projects’ review environment into the field. On iPad, Apple Pencil support enables natural sketching and inking, making it ideal for punch walks, design clarifications, or on-site markups. Photos can be attached directly to drawings or Tasks from the device’s camera, adding real-world context instantly.
The iPhone app offers mobile access to comments, Tasks, and updates, making it ideal for quick visibility and updates on the go.
Both versions function offline, so teams can use them in the field and then sync updates when internet access is restored later.
Architecture, engineering, and construction teams all face the same challenge: keeping drawings current, coordinating feedback across disciplines, and making sure decisions flow through to completion. Drawboard Projects brings those workflows into one shared environment, helping teams keep design intent, field conditions, and approvals aligned from start to finish.

Drawboard Projects centralizes design feedback so coordination between disciplines happens faster and with less confusion. Teams can conduct live drawing reviews, powered by real-time syncing, with each contributor adding their own markups and working on specific layers while Tasks capture follow-up actions in context.
Version overlays confirm that requested changes have been incorporated, and all feedback is recorded against the correct revision. This replaces email chains and conflicting PDFs with a single workspace where every comment is visible, traceable, and ready for approval.

By keeping design discussions focused and connected, Projects reduces review cycles, improves consultant coordination, and ensures drawings are always ready for issue.

Submittal reviews move faster when everything happens in one place. Drawboard Projects lets teams upload, review, and annotate shop drawings collaboratively, using Tasks to flag clarifications or changes directly on the drawing.
When a resubmittal is received, overlays show exactly what changed, making it easy to confirm that all feedback has been addressed. The full record of markups and approvals stays attached to the drawing, removing the need for manual tracking or extra documentation.
This clarity shortens review cycles, strengthens accountability, and ensures every approved submittal reflects the latest design requirements.

Drawboard Projects keeps office and field teams connected through one always-current set of drawings. On site, teams can drop Task pins to flag issues, attach photos or notes for context, and assign follow-up actions directly on the sheet, even offline.
When connectivity returns, updates sync automatically, giving project leads and coordinators an instant view of what’s been identified, resolved, or still open. This removes the need to manage separate site logs, reports, or spreadsheets and ensures that decisions made in the field are visible to everyone involved.
By capturing issues where they occur and syncing them to the same workspace used in the office, Drawboard Projects shortens QA/QC cycles, prevents communication gaps, and keeps projects moving without costly on-site rework.
Before drawings are reissued, Drawboard Projects provides a fast, visual way to confirm that every change has been reviewed and approved. Drawings are automatically stacked by version, and overlays highlight differences clearly so reviewers can verify updates with confidence.

Review Statuses track which sheets are approved, in progress, or still under review, providing an at-a-glance summary for decision-makers. This process eliminates uncertainty, ensures only validated drawings reach the field, and keeps every stakeholder aligned on the latest revision.
By maintaining this level of clarity, teams can minimize rework, save time in review meetings, and be confident that they’re always working from the correct information.

As projects close out, Drawboard Projects becomes the complete record of every review, markup, and decision made along the way. Final drawings, Task lists, and approval trails can be exported directly, creating a clear documentation package for client delivery or future reference.

This organized project record reduces the time and stress of closeout, eliminates the risk of missing information, and provides a transparent account of every change and approval. Clients receive a verified record of what was built and approved, and project teams gain a reliable reference for future work.
Drawboard Projects grows with your team. Each pricing plan builds on the same connected review foundation with real-time collaboration, powerful markup tools, and structured task management, adding more control, integrations, and admin tools as your projects expand.
For small to mid-sized teams ready to modernize their drawing reviews.
For larger teams coordinating across disciplines or external partners.
For organizations that need full-scale governance, security, and admin control.
All plans include a 30-day free trial to help you see firsthand how Drawboard Projects can upgrade your design reviews.
When reviews, markups, and decisions happen in different places, coordination slows and details fall through the cracks. Drawboard Projects brings everything into one shared workspace, helping teams move from feedback to approval without the friction of disconnected tools.
Teams see faster turnaround times, fewer revision errors, and stronger alignment between design, construction, and client teams. Every markup and Task stays traceable, version confusion disappears, and the entire review process becomes faster, clearer, and easier to manage.
Whether you’re coordinating design reviews, managing submittals, or tracking site issues, Drawboard Projects gives you the structure to keep every contributor working from the same source of truth.
Start your 30-day free trial today, or schedule a demo to learn how Drawboard Projects can help streamline your design reviews.
We are a PDF and collaboration company. We believe that creating more effective connections between people reduces waste.
Our best work has been overtaken by busywork. That’s why we’ve created ways to help people get back to working wonders without any paper in sight.
Drawboard PDF lets you mark up and share with ease, and Drawboard Projects brings collaborative design review to architecture and engineering teams.
At Drawboard, we work our magic so our customers can get back to working theirs.
We are a PDF and collaboration company. We believe that creating more effective connections between people reduces waste.
Our best work has been overtaken by busywork. That’s why we’ve created ways to help people get back to working wonders without any paper in sight.
Drawboard PDF lets you mark up and share with ease, and Drawboard Projects brings collaborative design review to architecture and engineering teams.
At Drawboard, we work our magic so our customers can get back to working theirs.


